Vigo incrementa la oferta de vivienda nuevo con un nuevo edificio

VIVIENDA

Publicado: 28 mar 2022 - 22:37 Actualizado: 29 mar 2022 - 17:55

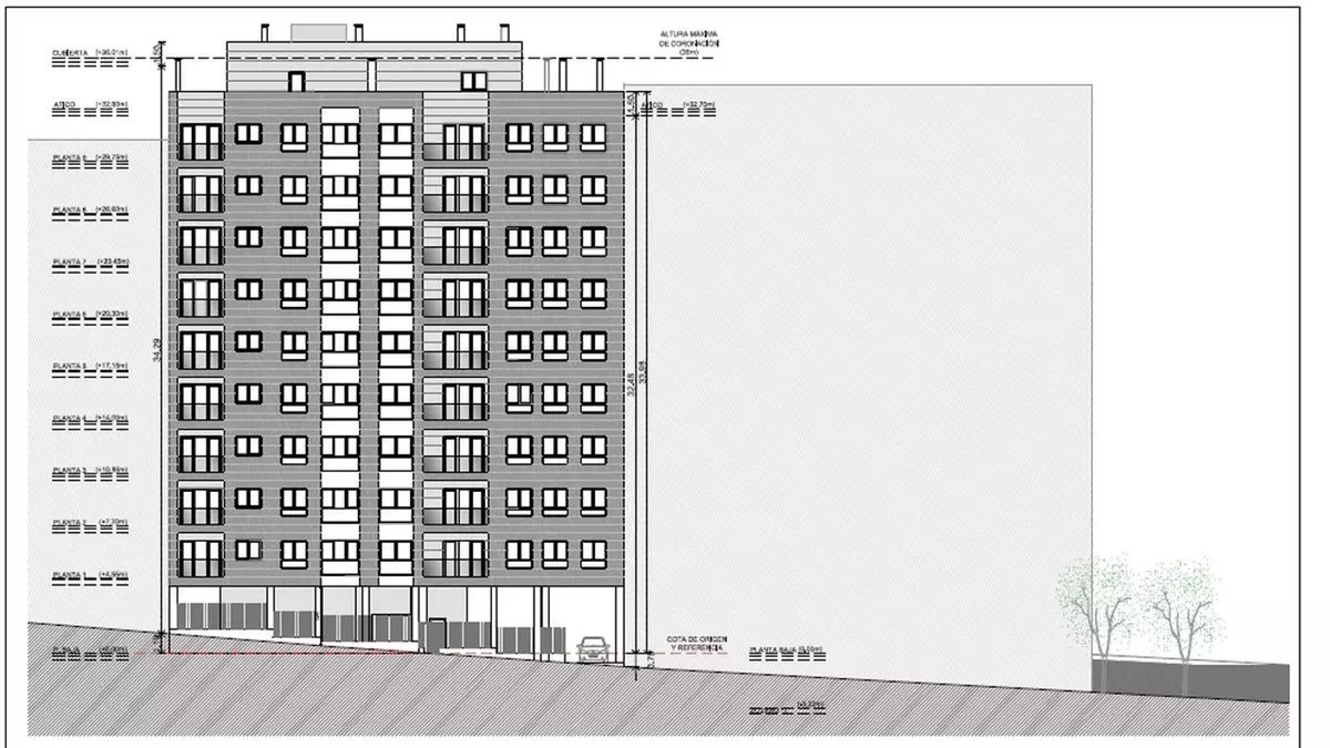
Un plano del edificio proyectado en Camiño Esturáns.
Un plano del edificio proyectado en Camiño Esturáns.

La oferta de vivienda nueva en Vigo se incrementará con un nuevo edificio en el Camiño Esturáns que contará con nueve plantas y 28 viviendas protegidas. La Gerencia Municipal de Urbanismo ya ha dado el visto bueno al proyecto presentado por Esturáns Sociedade Cooperativa Galega de Vivendas, que forma parte de la empresa Galca Solucións Habitacionais.

Plano de la parcela donde se proyecta la promoción.
Plano de la parcela donde se proyecta la promoción.

La nueva promoción contará con una inversión de 2.250.000 euros y contempla cuatro plantas de sótano destinadas a 53 plazas de aparcamiento y trasteros vinculados a viviendas, planta baja porticada con portal de acceso, trasteros y cuartos de instalaciones. Además habrá otras nueve plantas con tres viviendas por piso y un ático con otra vivienda, lo que suma una superficie total a construir de 6.179,85 metros cuadrados.

La parcela en la que se propone esta construcción está situada en una zona próxima a la Praza da Industria y está clasificada como suelo urbano, residencial multifamiliar. En la parte libre de la parcela no ocupada por el edificio se proyecta un aparcamiento en superficie que ocupará menos del 40% de la superficie y conectará con la calle Tomás Alonso. El edificio dispondrá de una área verde que lo aislará de otras edificaciones respecto de las fachadas con luces o vistas, además de no dar directamente a la calle principal.

Entre las plantas 1 y 8 habrá dos viviendas de tres dormitorios y una vivienda de dos dormitorios, mientras que la planta 9 contará con dos viviendas de tres dormitorios y otra de dos. En el ático habrá una única vivienda de dos dormitorios que además contará con una terraza privada. Se proyectan viviendas de unos 90 metros cuadrados útiles en 3 habitaciones y alrededor de 70 metros en 2 dormitorios. Así, todas las viviendas contarán con su plaza de garaje y un trastero y sus precios previstos de adjudicación se encuentran por debajo de los 200.000 euros sin IVA. Según Galca, en el momento de confirmar el interés en participar en la cooperativa, la persona interesada elegirá la vivienda de su preferencia.

Contenido patrocinado

stats